Thiết kế Vinhomes Green City được đánh giá như bản giao hưởng của không gian sống xanh, tiện ích đa lớp và phân khu chức năng được sắp đặt tinh tế. Tất cả đều mang đến trải nghiệm sống đẳng cấp cho cư dân.
Vậy, điều gì khiến mặt bằng dự án trở thành điểm sáng đầu tư của khu Tây Bắc TP.HCM? Khu vực nào hội tụ giá trị sống lý tưởng nhất? Hãy cùng SmartRealtors khám phá chi tiết về thiết kế Vinhomes Green City ngay sau đây.
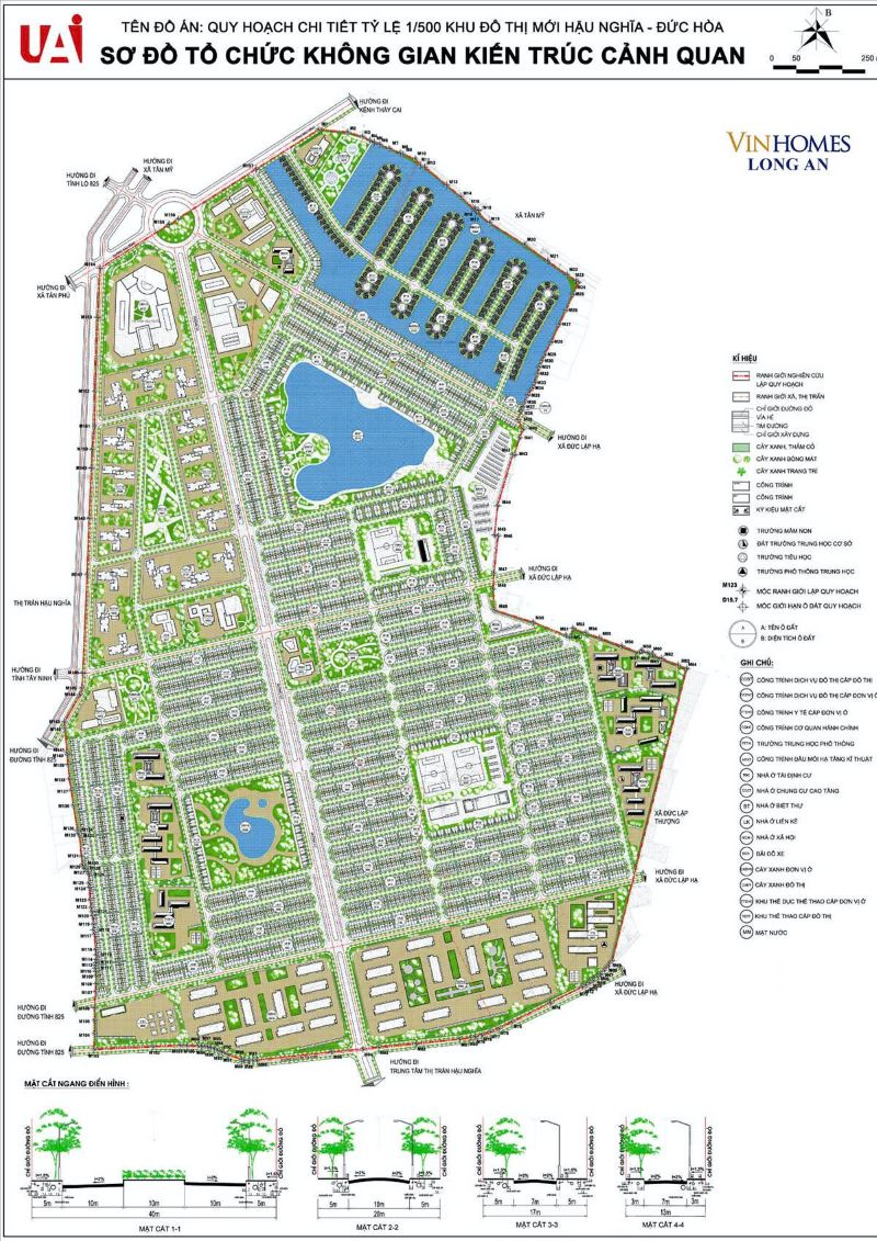
Tổng quan Vinhomes Green City tại Hậu Nghĩa, Long An
Vinhomes Green City là biểu tượng của sự chuẩn mực trong quy hoạch đại đô thị xanh – thông minh ngay cửa ngõ Tây Bắc TP.HCM.
Với tổng quy mô 197,22ha dự án được tổ chức như một đô thị tự vận hành, chia thành 5 phân khu chính với sự đa dạng về loại hình sản phẩm từ biệt thự, nhà phố, căn hộ đến tổ hợp tiện ích, giáo dục, y tế chuẩn quốc tế.

Thiết kế Vinhomes Green City có gì đặc biệt? Tổng quan Vinhomes Green City tại Hậu Nghĩa, Long An
Cách bố trí mặt bằng đồng bộ, hài hòa giữa các khu vực chức năng và không gian sinh thái xanh đã tạo nên dấu ấn riêng cho thiết kế Vinhomes Green City.
Đây chính là yếu tố chiến lược giúp dự án chiếm trọn sự quan tâm từ cả khách hàng an cư lẫn giới đầu tư đón đầu xu hướng phát triển khu Tây Bắc.
Thiết kế Vinhomes Green City: Thiết kế tiện ích sinh thái
Nằm trọn trong định hướng đô thị xanh – thông minh, thiết kế Vinhomes Green City được đặc biệt chú trọng trong bố trí mặt bằng tiện ích nội khu, mang đến cho cư dân không gian sống đẳng cấp, tiện nghi “một bước chân chạm mọi tiện ích”.
Các chuỗi tiện ích được bố trí bao quanh lõi xanh trung tâm, giúp mọi cư dân dù ở bất kỳ góc nào của dự án cũng có thể nhanh chóng tiếp cận các dịch vụ trọng yếu như: Vincom Mega Mall, trường liên cấp quốc tế Vinschool, bệnh viện Vinmec và chuỗi tiện ích thể thao, giải trí đa năng.

Thiết kế Vinhomes Green City có gì đặc biệt? Thiết kế tiện ích sinh thái.
Bên cạnh đó, hệ thống sân bóng, bể bơi phong cách resort, sân tennis, khu gym, yoga ngoài trời cùng hàng loạt khu công viên chủ đề, tuyến dạo bộ, xe đạp đã tạo nên không gian sống năng động, hài hòa giữa nhịp sống hiện đại và thiên nhiên.
Xem thêm:
Thiết kế Vinhomes Green City: Thiết kế về sản phẩm
Với định hướng kiến tạo một đô thị kiểu mẫu tại cửa ngõ Tây Bắc TP.HCM, thiết kế Vinhomes Green City được triển khai quy hoạch ôm trọn cảnh quan xanh mát.
Mặt bằng tổng thể được chủ đầu tư Vinhomes quy hoạch thông minh theo mô hình “phố trong phố”, vừa đảm bảo sự riêng tư cho từng phân khu, vừa tối ưu hóa khả năng kết nối tiện ích.

Thiết kế Vinhomes Green City có gì đặc biệt? Thiết kế các sản phẩm đều ôm trọn cây xanh.
Dự án sở hữu danh mục sản phẩm toàn diện, bao gồm biệt thự sang trọng, nhà phố liền kề hiện đại, căn hộ cao tầng cao cấp, hình thành nên cộng đồng cư dân phong phú về nhu cầu và phong cách sống.
Đặc biệt, trong thiết kế Vinhomes Green City, mọi căn hộ và nhà ở đều được đặt tại những vị trí chiến lược, thuận tiện tiếp cận hệ tiện ích trọng tâm chỉ trong vòng 5 – 10 phút di chuyển, giúp cư dân tận hưởng trọn vẹn hệ sinh thái nội khu mà không cần di chuyển xa.
Sản phẩm thấp tầng Vinhomes Green City
Thiết kế Vinhomes Green City được chú trọng đặc biệt ở phân khúc nhà thấp tầng, nhằm kiến tạo môi trường sống tiện nghi và cộng đồng văn minh ngay giữa trung tâm đô thị mới.
Tại đây, chủ đầu tư Vinhomes phát triển tới 4.572 căn thấp tầng, bao gồm cả biệt thự cao cấp và nhà phố liền kề, phục vụ đồng thời mục đích an cư, kinh doanh hoặc khai thác cho thuê.
- Nhà phố thương mại và nhà liền kề được thiết kế chỉn chu, mặt tiền thoáng rộng 6m, giúp nâng tầm trải nghiệm sống và kinh doanh.
- Khu biệt thự nổi bật với hai loại hình: đơn lập và song lập, mang đậm phong cách Tân cổ điển, hòa quyện giữa sự hiện đại và nét kiến trúc tinh tế.

Thiết kế Vinhomes Green City có gì đặc biệt? Thiết kế sản phẩm Shophouse (Sắp ra mắt).

Thiết kế Vinhomes Green City có gì đặc biệt? Thiết kế nhà phố kiền kề (Sắp ra mắt).
Sự sắp xếp hợp lý các dãy nhà phố trong thiết kế Vinhomes Green City giúp cư dân thuận tiện tiếp cận các tiện ích nội khu, đồng thời tạo nên mạng lưới kết nối cộng đồng bền chặt.
Sản phẩm cao tầng Vinhomes Green City
Là điểm sáng nổi bật trong thiết kế Vinhomes Green City, khu căn hộ cao tầng được bố trí thông minh ven trục cảnh quan chính, tiếp giáp hệ sinh thái công viên – hồ nước điều hòa và chuỗi tiện ích nội khu phong phú.
Với tổng quy mô 11.000 sản phẩm căn hộ, khu căn hộ cao tầng tại Vinhomes Green City mang đến các dòng sản phẩm đa dạng, từ Studio nhỏ gọn đến các căn Duplex sang trọng, Penthouse đẳng cấp.

Thiết kế Vinhomes Green City có gì đặc biệt? Thiết kế sản phẩm cao tầng (Sắp ra mắt).
Các tòa nhà được thiết kế theo hình khối T, L hoặc Z, giúp tối đa hóa khả năng đón sáng tự nhiên và đối lưu gió, đồng thời kiến tạo tầm nhìn rộng mở, không giới hạn ra toàn cảnh đô thị xanh mát.
Thiết kế Vinhomes Green City còn chú trọng từng chi tiết nhỏ trong từng căn hộ – từ việc lựa chọn vật liệu nội thất cao cấp, bố cục thông minh đến trang bị hệ thống điều hòa, thiết bị vệ sinh, tủ bếp hiện đại. Hệ thống smart home thông minh giúp cư dân dễ dàng kiểm soát tiện ích chỉ với một chạm, nâng cao trải nghiệm sống tiện nghi, riêng tư và an toàn.
Thiết kế Vinhomes Green City – lợi thế lớn dành cho nhà đầu tư
Thiết kế Vinhomes Green City được xem là “chìa khóa vàng” khiến dự án này trở thành tâm điểm đầu tư sáng giá tại khu Tây TP.HCM. Bên cạnh việc định hình chuẩn mực sống mới cho cư dân, layout mặt bằng tại đây còn tạo ra sức bật lớn về giá trị thương mại, sinh lời vượt trội trong tương lai.

Thiết kế Vinhomes Green City – lợi thế lớn dành cho nhà đầu tư
Tổng thể đại đô thị được quy hoạch phân khu rõ nét với các khu chức năng riêng biệt: căn hộ cao tầng tập trung ở phía Tây, biệt thự – nhà phố tọa lạc tại khu trung tâm ven lõi xanh sinh thái, tạo nên sự riêng tư nhưng vẫn thuận tiện kết nối tiện ích.

Thiết kế Vinhomes Green City có gì đặc biệt? Thiết kế dễ dàng khai thác cho thuê.
Thiết kế thông minh này giúp các sản phẩm dễ dàng tối ưu công năng: nhà phố, shophouse có tiềm năng kinh doanh cao khi tiếp giáp trực tiếp trục thương mại; biệt thự, căn hộ cao tầng lại đảm bảo tầm nhìn đắt giá và không gian sống thoáng đãng.
Đây cũng chính là bảo chứng vững chắc để nhà đầu tư an tâm xuống tiền ngay từ những giai đoạn đầu, đón đầu cơ hội tăng giá bền vững trong dài hạn.
Đăng ký ngay để chọn căn ưu tiên
Nếu Anh/Chị cần tư vấn chi tiết về dự án Vinhomes Green City, vui lòng liên hệ với SmartRealtors:
- Công ty TNHH Bất động sản SmartRealtors
- Địa chỉ: 92 Nguyễn Hữu Cảnh Phường 22 Quận Bình Thạnh
- Hotline: 0916 25 78 25